Wohnimmobilie > Erdgeschosswohnung
Zu Vermieten

"Haus im Haus" - Großzügige Wohnetage in Altenvoerde

58256 Ennepetal
750 €

5798#up0PHw
1957
89 m²
2
  • Diese tolle Erdgeschosswohnung in einem 2- Familienhaus befindet sich in einer Seitenstraße in Ennepetal-Altenvoerde in schöner Grünlage.

    Es handelt sich um eine 2-Zimmer Wohnung, welche in 2021 und 2024 umfassend renoviert und energetisch wie folgt modernisiert wurde. Photovoltaik Anlage auf dem Dach zur Stromerzeugung der Wärmepumpen zum Betreiben der Heizung und zur Erzeugung von Warmwasser. Das Dach wurde 2024 wärmegedämmt.

    Fakten der Wohnung:

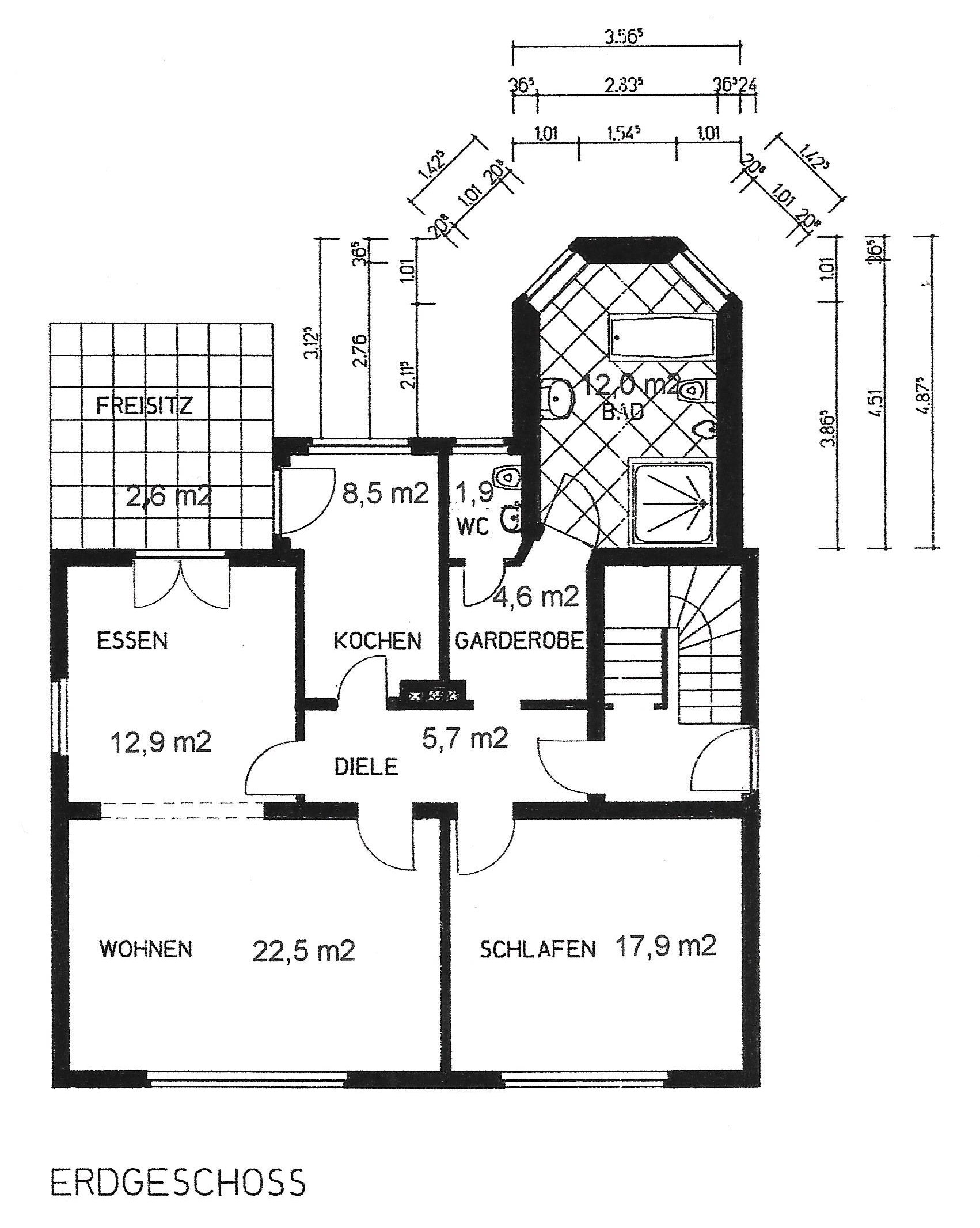
    Diele mit Einbauschrank, Küche mit Ausgang zur Terrasse und zum Gartenanteil, großes Tageslichtbad mit Wanne und Dusche, Gäste-WC mit Fenster, Wohn- und Esszimmer mit Ausgang zur Terrasse. Das dritte Zimmer könnte durch eine Trennung vom Wohn- / Esszimmer als Arbeits- oder Kinderzimmer genutzt werden. Großes Schlafzimmer.
    Die große überdachte Terrasse bietet Ihnen einen Blick in den schönen Garten.

    Die gesamte Wohnung ist weiß gestrichen. Wohn- und Esszimmer sowie das Schlafzimmer sind mit hellem Laminat ausgestattet, Küche und Flur mit hellen Fliesenboden. Alle Fenster mit elektr. Jalousiesteuerungen, Gegensprechanlage vorhanden.

    Ein Kellerraum und ein kleiner Abstellraum im Keller gehört mit zur Wohnung, sowie ein gemeinschaftlicher Wasch- und Trockenraum. In den Nebenkosten sind die Heizkosten bereits enthalten.
    Die Hausgarage hat ein wärmegedämmtes elektrisches Sektionaltor aus 2021, 1 Metallhütte mit eigenen Gartengeräten (kein Ersatz) gehört zur Wohnung.

    Die Garage mit einem elektrischen Tor, direkt am Haus, kann für 70,00 EUR monatlich mit angemietet werden. Haustiere nach Absprache. Bezugsfrei nach Vereinbarung.

    Zur Wohnung gehört ein großer Gartenanteil zur alleinigen Nutzung und Pflege. Der Vorgartenbereich wird durch ein Gartenbauunternehmen gepflegt und die Kosten sind auf die Nebenkosten umgelegt.

    Haben wir Ihr Interesse geweckt ?
    Dann freuen wir, das Team von Kramme Immobilien, uns auf Ihre Nachricht.
  • Flächen

    • Wohnfläche: 89 m²
    • Gartenfläche: 500 m²
    • Zimmer insgesamt: 2
    • Schlafzimmer: 1
    • Badezimmer: 1
    • Separate WCs: 1
    • Etagen: 2
    • Etage: 1
    • WG-geeignet: nein
    • Stellplatzart: Garage
    • Garagenstellplätze: 1
    • Terrassen: 1

    Zustand & Erschließung

    • Baujahr: 1957
    • Zustand: modernisiert
    • Letzte Modernisierung: 2024
    • Alter: Altbau
    • Keller: voll unterkellert

    Sonstiges

    Verarbeitung von Daten
    Wir erheben, verarbeiten und nutzen personenbezogene Daten nur, soweit sie für die Begründung, inhaltliche Ausgestaltung oder Änderung des Rechtsverhältnisses erforderlich sind (Bestandsdaten). Dies erfolgt auf Grundlage von Art. 6 Abs. 1 lit. B DSGVO, der die Verarbeitung von Daten zur Erfüllung eines Vertrages oder vorvertraglicher Maßnahmen gestattet. Personenbezogene Daten über die Inanspruchnahme unserer Internetseiten (Nutzungsdaten) erheben, verarbeiten und nutzen wir nur, soweit dies erforderlich ist, um den Nutzer die Inanspruchnahme des Dienstes zu ermöglichen und abzurechnen.
    Sie haben im Rahmen der geltenden gesetzlichen Bestimmungen jederzeit das Recht auf unentgeltliche Auskunft über Ihre gespeicherten personenbezogenen Daten, deren Herkunft und Empfänger und den Zweck der Datenverarbeitung und ggf. ein Recht auf Berichtigung, Sperrung und Löschung dieser Daten. Hierzu sowie zu weiteren Fragen zum Thema personenbezogene Daten können Sie sich jederzeit an uns wenden.
    • Immobilie ist verfügbar ab: 01.03.2026
    • Denkmalschutz: nein
    • Heizungsart: Zentralheizung
    • Befeuerung: Luft-Wärmepumpe
    • Bodenbelag: Fliesen, Laminat
    • Badausstattung: Dusche, Badewanne, Fenster
    • Gartennutzung
    • Gäste-WC
    • Energieausweis-Art: Bedarf
    • Energieausweis gültig bis: 27.10.2034
    • Endenergiebedarf: 104,00 kWh/(m²*a)
    • Primärenergieträger: Wärmepumpe
    • Energieeffizienzklasse: B
    • Baujahr (Energieausweis): 1957
    • Energieausweis-Ausstellungsdatum: 28.10.2024
    • Energieausweis-Jahrgang: ab Mai 2014
    • Energieausweis-Gebäudeart: Wohngebäude
    A+
    A
    B
    104,00 kWh/(m²·a)
    C
    D
    E
    F
    G
    H
  • Das angebotene Objekt befindet sich in ruhiger Wohnlage in Ennepetal-Altenvoerde. Schulen und Kindergarten sind in unmittelbarer Nähe. Anbindung an örtlichen Nahverkehr fußläufig.
    Ennepetal ist eine Stadt mit ca. 30.000 Einwohnern mit wunderschöner Umgebung. Die umliegenden Städte des Ennepe-Ruhr-Kreises, sowie die benachbarten Großstädte Wuppertal, Hagen, Remscheid und Bochum sind schnell und bequem zu erreichen. Grundschulen sind in der Nachbarschaft, das Schulangebot in Ennepetal ist komplett und mit öffentlichen Verkehrsmitteln zu erreichen.

    • Lage/Gebiet: Wohngebiet
    • Kaltmiete: 750 €
    • monatl. Betriebs-/Nebenkosten: 450 €
    • Heizkosten in Warmmiete enthalten: ja
    • Kaution: 2000€
    • Stellplatzmiete (Garage): 70 €

Deine Ansprechpartnerin bei uns

Nadine Mann

     
Sicher!